Описание
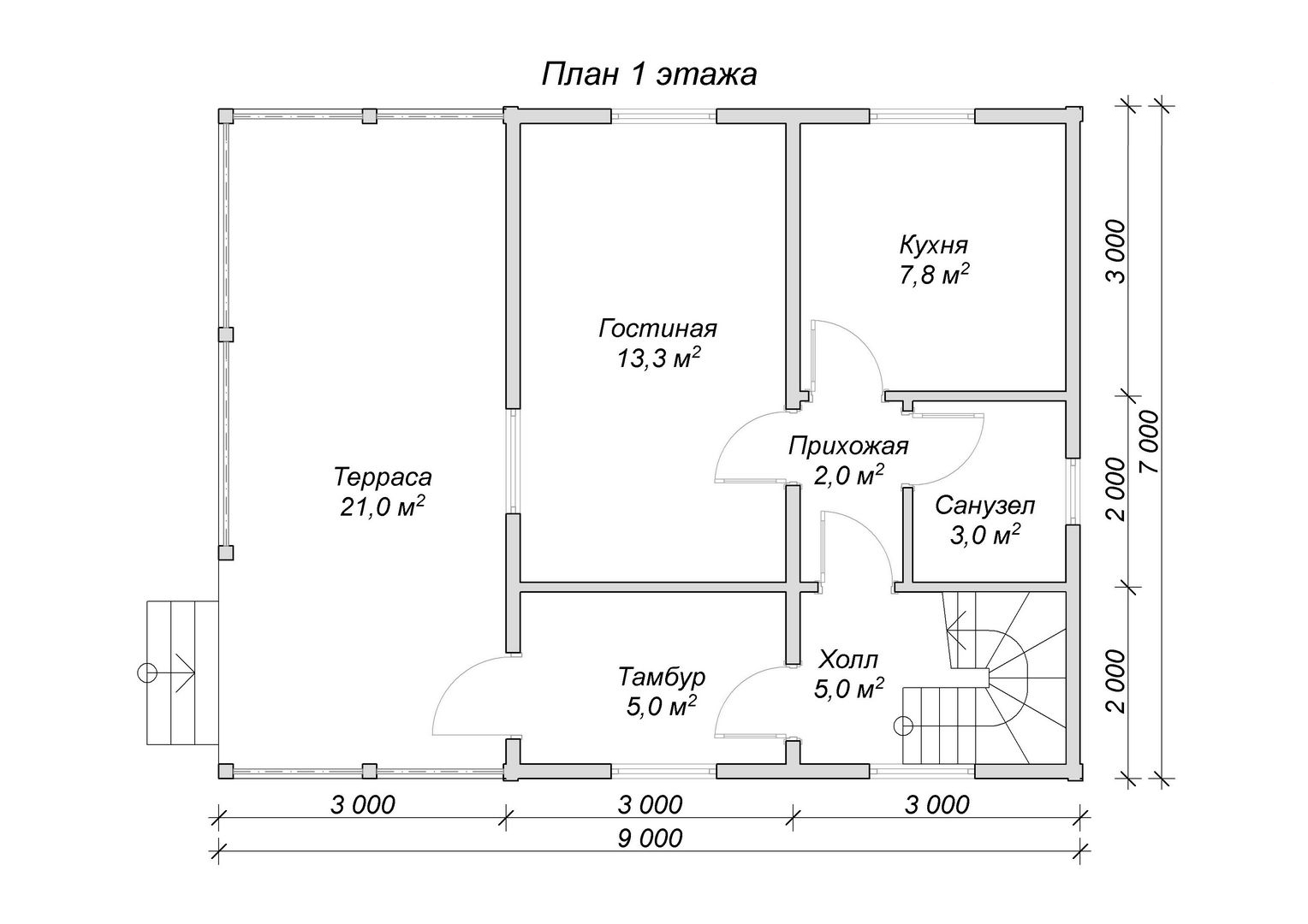
Двухэтажный дачный дом «Оскар» 9*7 украсит любой садовый участок. За довольно лояльную цену заказчик получит каркасную коробку, размером 6х7м с большой террасой, размером 3х7м, покрытых общей двухскатной крышей. В стоимость входит устройство перекрытия этажей и лестницы, кровлю накрытую профнастилом, основание на фундаменте из бетонных блоков и внутренние перегородки. В базовой комплектации предусмотрено наличие 5 окон и одной двери, но количество проемов не ограничивается и учитывается при проектировании. Постройка обшита вагонкой снаружи.
| ФУНДАМЕНТ | Столбчатый из фундаментных блоков 200х300х300мм. Гидроизоляция по верху фундамента рубероид. |
| НИЖНЯЯ ОБВЯЗКА | Замкнутая из бруса 100х100мм или сдвоенного бруса 50х100мм. |
| ПОЛЫ | Балки пола из пиломатериала 30х150мм с шагом 900мм. Половая доска шпунтованная 25х135мм. Плинтуса деревянные |
| СТЕНЫ | Каркас из доски 30х100мм с шагом 900мм. Снаружи подшит деревянной вагонкой шириной 9мм. С внутренней стороны подшивка ДВП. |
| ПЕРЕГОРОДКИ | Каркас из доски 30х100мм с шагом 1200мм, подшит с двух сторон ДВП. |
| ПОТОЛОК | Перекрытие из доски 30х100мм с шагом 700мм подшивается ДВП. |
| ОКНА, ДВЕРИ | Окна деревянные 800х1000мм. Двери деревянные 800х2000мм. |
| КРОВЛЯ | Профнастил оцинкованный по стропилам из доски 50х100мм с шагом 1000мм.Обрешетка полуобрезная доска 22х150мм с шагом 400мм. |











Отзывы
Отзывов пока нет.